Country Craftsman House Plan with 2-Story Great Room and Upstairs Game Room

Original price was: $1,545.00.Current price is: $1,313.25.

Square Footage Breakdown

Total Heated Area:2,526 sq. ft.

1st Floor:1,766 sq. ft.

2nd Floor:760 sq. ft.

Bonus:374 sq. ft.

Porch, Rear:304 sq. ft.

Balcony / Veranda:283 sq. ft.

Beds/Baths

Bedrooms:3, 4, or 5

Full bathrooms:2, 3, or 4

Half bathrooms:1

Foundation Type

Standard Foundations:Slab

Optional Foundations:Crawl, Basement, Walkout

Exterior Walls

Exterior Walls:2×4

Optional Type(s):2×6

Dimensions

Width:68′ 7″

Depth:51′ 7″

Max Ridge Height:33′ 6″

Garage

Type:Attached

Area:507 sq. ft.

Count:2 or 3 Cars

Entry Location:Side, Front

Ceiling Heights

First Floor:10′

Second Floor:9′

Roof Details

Primary Pitch:12 on 12

Secondary Pitch:2 on 12

Framing Type:Stick

 

SKU: Plan 16919WG Category:

Floor Plan

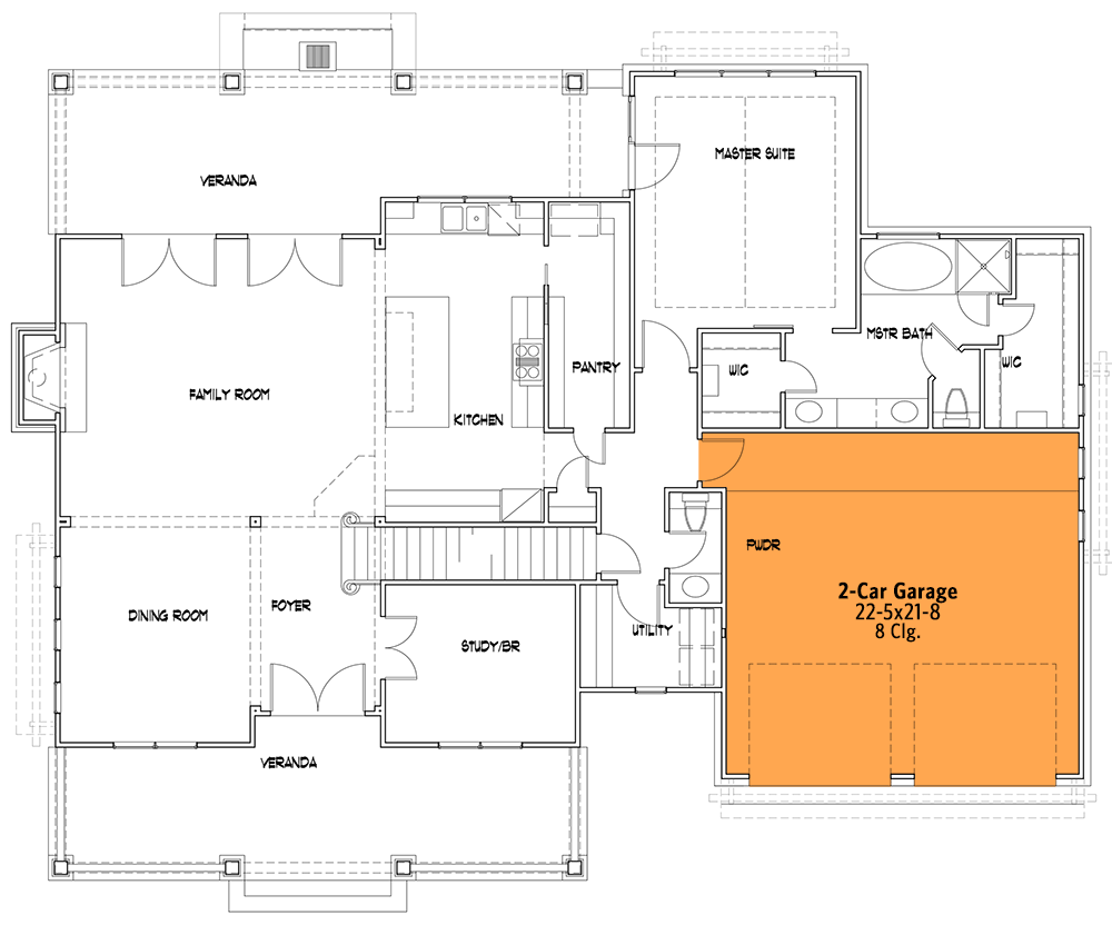
Main Level

2nd Floor

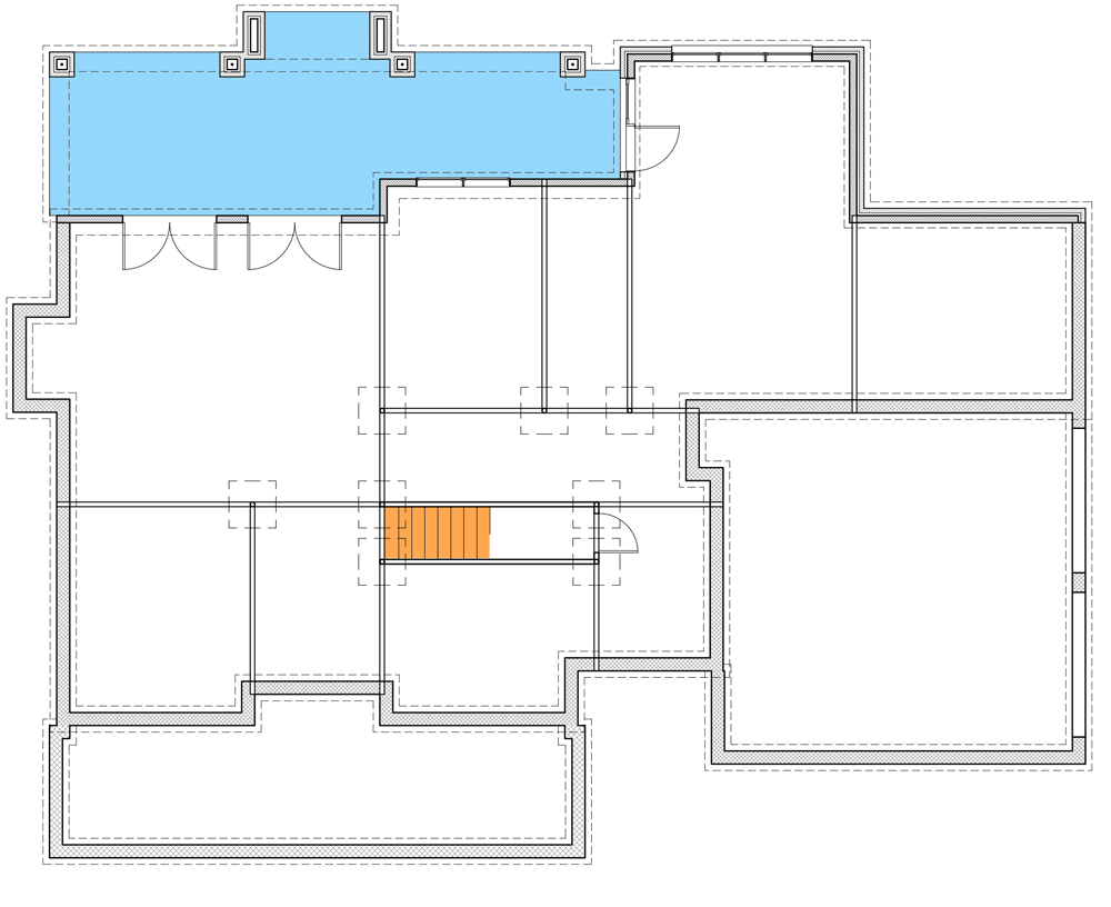
Unfinished Lower Level

3-Car Side Garage Option

3-Car Side Garage Option – 2nd Floor w/ Expanded Bonus

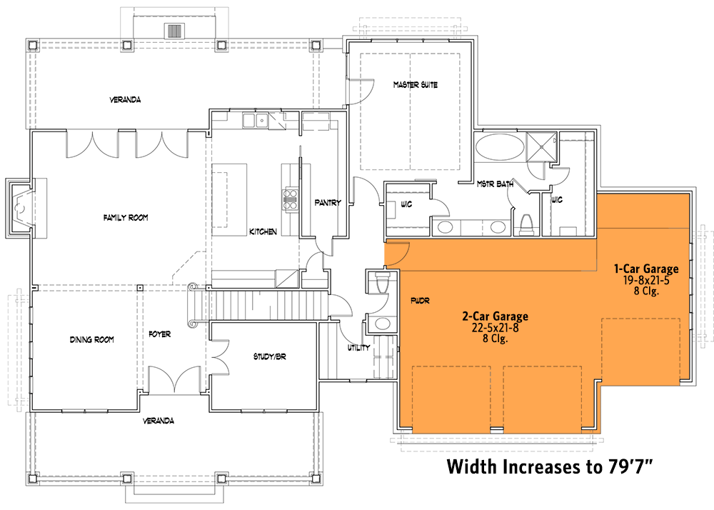
2-Car Front Garage Option

3-Car Front Garage Option

3-Car Front Garage Option – 2nd Floor w/ Expanded Bonus

Plan Details

  • This Country Craftsman house plan provides a comfortable layout for any size of family, and features tall ceilings above an open concept living space that flows onto a covered lanai.
  • From the foyer, discover a formal dining room across from a quiet study. Towards the rear, tall ceilings provide a feeling of spaciousness, and the open kitchen includes loads of workspace, along with a pass-through pantry for maximum storage.
  • The first-floor master suite is privately tucked away behind the 2-car garage, and features a 5-fixture bath with dual walk-in closets.
  • A powder bath resides just inside from the double garage, next to the laundry room.
  • Upstairs, two bedrooms share a 4-fixture bath, and a spacious bonus room (374 square feet) is located above the garage. Choose to convert the lofted game room into a fourth bedroom suite that extends onto a second-level balcony.
  • Related Plan: Get a one-story version with house plan 16925WG.

What’s Included

  • Floor Plans – ¼”=1’-0” scale floor plan indicating location of frame and masonry walls, support members, doors, windows, plumbing fixtures, cabinets, shelving, ceiling conditions and notes deemed relevant to this plan.
  • Exterior Elevations – All elevations at ¼” = 1’-0” scale in most cases.  Some older designs may contain 1/8” scale side and rear elevations. Drawing will indicate overall configuration of home at each side view and make note of plate heights, roof overhangs, window header heights, roof pitches, materials used and extent to which they are used and enlargement of any details we feel necessary to explain the construction.
  • Building Sections – ¼” = 1’-0” building sections are included when there is no other reasonable way to indicate the volumetric/height conditions in the home.  Most of this information can usually be determined from the exterior elevations.
  • Cabinet Elevations – 3/8” = 1’-0” scale elevations indicating configuration of cabinets, heights, widths, type of components used, cabinet material and finish, counter surfaces, appliances,
  • Framing Plans – ¼” – 1’-0” scale framing plans indicating size and spacing of members as well as bracing and blocking required for structural purposes. Local codes will most likely need to be consulted.
  • Foundation Plans – ¼” = 1’-0” scale foundation plans indicating location of structural walls, grade beams, reinforcing steel and structural columns.  Consulting a local engineer is advisable as well as is analysis of soil conditions on site.
  • Electrical Plans – ¼” = 1’-0” scale schematic plans indicating location and types of electrical fixtures, switches, outlets, and how they are to be switched.  Plans do not include circuiting or wire sizing.  Plans will also include specialty items such as hose bibs, gas connections, location of a/c equipment, return air vents or other mechanical/electrical/plumbing items which need to be located.

What’s Not Included

  • Architectural or Engineering Stamp – handled locally if required
  • Site Plan – handled locally when required
  • Mechanical Drawings (location of heating and air equipment and duct work) – your subcontractors handle this
  • Plumbing Drawings (drawings showing the actual plumbing pipe sizes and locations) – your subcontractors handle this
  • Energy calculations – handled locally when required

 

Reviews

There are no reviews yet.

Be the first to review “Country Craftsman House Plan with 2-Story Great Room and Upstairs Game Room”

Your email address will not be published. Required fields are marked *