Floor Plan
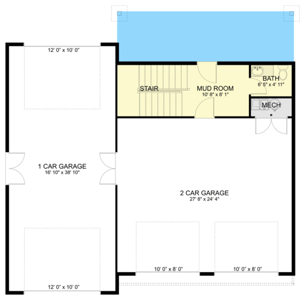
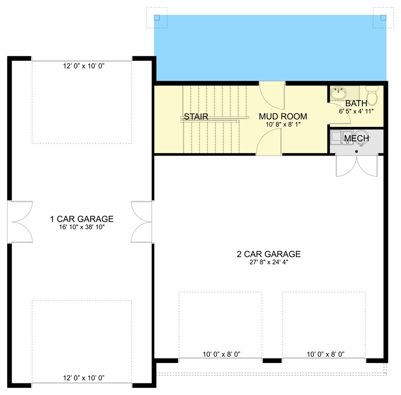
Main Level
2nd Floor
Plan Details
- This modern garage apartment gives you 1,420 square feet of storage for 3 vehicles on the ground floor with a large RV/boat stall with a 12′ by 10′ overhead garage doors front and back and two adjacent standard vehicle bays with matching 10′ by 8′ overhead doors.
- A mudroom and a half bath are nice-to-haves and gives you the chance to clean up after working on your vehicles before going upstairs to the apartment.
- Upstairs, a large deck (28′ by 10′) on the back side expands your livability to the outdoors. Sliding doors open to the great room which is open to the C-shaped kitchen with a double sink set below a window looking out the side.
- The bedroom is roomy enough for a king size bed and has a dual vanities, a walk-in shower and a large walk-in closet.
What’s Included
- General notes
- Foundation plan
- Detailed floor plans
- Floor framing
- Roof framing
- Elevations
- Cross sections
- Electrical plans
- General details
What’s Not Included
- Architectural or Engineering Stamp – handled locally if required
- Site Plan – handled locally when required
- Mechanical Drawings (location of heating and air equipment and duct work) – your subcontractors handle this
- Plumbing Drawings (drawings showing the actual plumbing pipe sizes and locations) – your subcontractors handle this
- Energy calculations – handled locally when required














































Reviews
There are no reviews yet.